Quadrilocale in vendita

Torino, Corso Racconigi - San Paolo
€ 295.000
4 locali 4 locali
100 Mq 100 Mq
1 bagno 1 bagno

Quadrilocale in vendita

Torino, Corso Racconigi - San Paolo

Descrizione annuncio

Corso Racconigi.

L’appartamento è situato in una zona particolarmente interessante di Torino, tra Piazza Sabotino e Piazza Robilant, a pochi passi da Via Monginevro. Il quartiere è molto apprezzato per la sua vivacità e per la ricchezza di servizi che offre, rendendolo ideale per chi cerca comodità e praticità nella vita quotidiana. Nei dintorni sono presenti numerose attività commerciali tra cui supermercati, farmacie e due mercati rionali che permettono di avere tutto il necessario a portata di mano. L’area è inoltre ottimamente servita dai mezzi pubblici, con collegamenti rapidi e diretti verso il centro città e il Politecnico di Torino, raggiungibile anche comodamente a piedi.

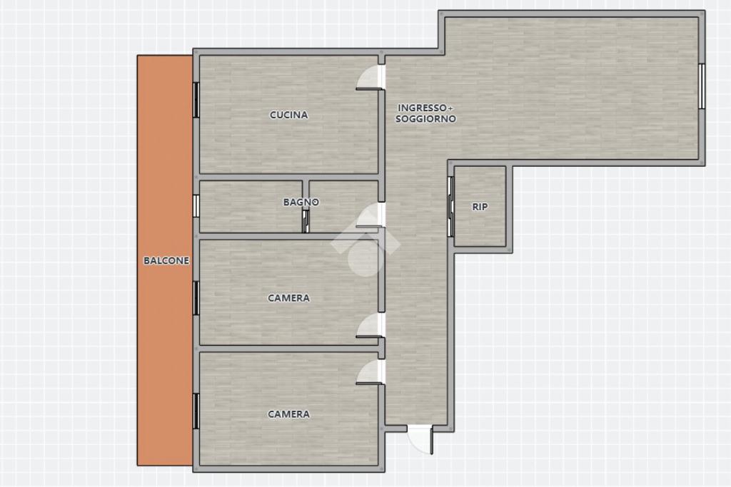
L’edificio, costruito nel 1957, si presenta in buone condizioni generali ed è dotato di ascensore. L’appartamento è stato completamente ristrutturato nel 2016, compreso l’impianto elettrico. In occasione dei lavori sono stati sostituiti gli infissi originali con infissi in PVC con doppio vetro, le porte interne e la porta blindata con videocamera. I pavimenti, uniformi in tutto l’alloggio, sono in gres porcellanato effetto legno e le tapparelle sono motorizzate. È inoltre presente un impianto di condizionamento con funzione caldo/freddo. L’ingresso si apre su un disimpegno che conduce a tutti gli ambienti della casa. L’appartamento dispone di due camere da letto con comodi spazi. Entrambe con porta-finestra e accesso al balcone dotato di inferriate di sicurezza. Ampio soggiorno che conquista per suoi spazi generosi, perfetto per creare un ambiente conviviale e raffinato. È presente una finestra che affaccia direttamente su Corso Racconigi. La cucina abitabile offre spazi comodi e una porta-finestra con inferriata, che conduce al balcone anche essa. Il bagno è dotato di box doccia e finestra. Completano la proprietà un ripostiglio, una cantina e il riscaldamento centralizzato con teleriscaldamento.

Mostra tutto

Nelle vicinanze

Trasporto pubblico Trasporto pubblico
Rivoli
Rivoli
1,5 Km
Racconigi
Racconigi
1,6 Km
stazione di Torino Porta Susa
stazione di Torino Porta Susa
2,0 Km
stazione di Torino Porta Nuova
stazione di Torino Porta Nuova
2,5 Km
Racconigi
Racconigi
280 m
Ricariche auto elettriche Ricariche auto elettriche
RSA Grangia - Via Ada Negri | Duferco
1,2 Km
Bluetorino Politecnico
1,4 Km
Bluetorino Tripoli
1,6 Km
evway TO Porta Susa
1,9 Km
Bluetorino Porta Susa FS
1,9 Km
Scuole Scuole
Istituto Professionale per Industria e Commercio "G.Plana"
150 m
Scuola Primaria "Santorre di Santarosa"- I.C.Alberti
190 m
Scuole
280 m
ITAS Santorre di Santarosa
730 m
Assocam - Scuola Camerana
730 m
Farmacia Farmacia
Farmacia San Bernardino
170 m
Sant'Emilio
200 m
Busatti Borgo San Paolo Sas
290 m
Borgo San Paolo
400 m
Farmacia Bullio Dranzon
450 m
Ospedali Ospedali
LARC
1,4 Km
Ospedali
1,4 Km
Ospedale Martini - Emergency
1,5 Km
Ospedale Martini
1,5 Km
Ospedale Mauriziano
2,0 Km
Supermercati Supermercati
Pam
410 m
Bennet
420 m
Conad
510 m
MD
560 m
EuroSpin
600 m
Negozi Negozi
Il Forno dell'Angolo
250 m
Negozi
490 m
Delper
630 m
Panificio Marchisio
900 m
Gastronomia da Marinella e Fernando
950 m
Bar Bar
Bar
360 m
Discobar Il Scoppiato
390 m
Manitu
780 m
Spritz Cafè
860 m
Tiffany
1,0 Km
Ristoranti Ristoranti
U-Tub
50 m
Pizzeria Personaggio
150 m
La Gastronomia Veg
190 m
Ciclocucina
280 m
Punjab
320 m
Mostra tutto

Caratteristiche

Rif.:
61126949
Piano:
1 di 7 con ascensore (Piano basso)
Balconi:
1
Camere da letto:
2
Arredamento:
Assente
Condizionamento:
Autonomo
Mostra tutto
Prezzo Prezzo
€ 295.000
Rata mutuo Rata mutuo
€ 1.391 / mese
Spese annue Spese annue
€ 3.000
Proponi il tuo prezzoProponi il tuo prezzo
Immobile valutato con T·Valuta

Classe Energetica

D
D
D
D
D
D
D
D
D
EP globale non rinnovabile:
150.35 kW h/m² anno
EP globale rinnovabile:
33.27 kW h/m² anno
EP invernale del fabbricato:
EP estiva del fabbricato:
Anno di costruzione:
1958
Riscaldamento:
Centralizzato
Tipo impianto:
A radiatori
Tipo alimentazione:
Metano

Ti interessa visionare l'immobile?

Fissa un appuntamento  Fissa un appuntamento

Richiedi informazioni

Clicca su Leggi per aprire l'informativa
* Questi campi sono obbligatori

Calcola il tuo mutuo

Semplice e senza impegno
Anticipo

( % )
Mutuo

( % )

pochi semplici passi

inserisci i tuoi dati
Questionario completato
Grazie per aver richiesto un appuntamento senza impegno con un nostro Consulente del Credito e Assicurativo.

Hai inserito correttamente tutti i dati necessari e a breve riceverai una e-mail con un link da convalidare per inviare i tuoi dati.
Affiliato
Studio San Paolo 3 Sas
Via Monginevro, 58 10141 Torino (TO)

Il nostro staff


  • Giuseppe Falcone
    Affiliato

  • Fabrizio Laddomada
    Affiliato

  • Albert Farcas
    Collaboratore

  • Joy Linh Beatrice O'Neill
    Coordinatrice

  • Giuliano Erra
    Collaboratore
Via Monginevro, 58 10141 Torino (TO)
Zona: San Paolo Piazza Sabotino – Piazza Robilant
Mostra su mappa
Orari: LUNEDI'- VENERDI': 09:00-12:30 / 15:00-20:00 SABATO 09:00-12:30
Affiliato
Studio San Paolo 3 Sas
Via Monginevro, 58 10141 Torino (TO)

2025 Tecnocasa Franchising S.p.A. - P. IVA 08365160152 - Via Monte Bianco 60/A 20089 Rozzano (MI). Ogni agenzia ha un proprio titolare ed è autonoma. Privacy policy | Policy utilizzo | Cookie policy